正规滚球app(中国)官方网站 - ios/安卓/手机app下载

销售邮箱

sales@ktvalve.com

服务热线

021-36160823

蒸汽减压阀

蒸汽减压阀 KFDP17-16/25

在线咨询 发起询价 销售热线:021-36160823

用途

蒸汽减压阀用于蒸或压缩空气系统,起到减压稳压的作用。


执行标准

设计制造:GB/T12246

连接法兰:GB/T17241.6、

结构长度:JB/T2205

试验检验:GB/T12245


特点

1、先导式控制,可设定出口压力,调节方便,控制精确。

2、大直径金属膜片做驱动原件,感应灵敏,抗老化,耐温较高。

3、不受进口压力波动影响,可减动压,也可减静压,性能稳定的。

4、阀芯上下均设有导向,动作平稳。


主要性能参数和材料
型号 公称压力 适用温度℃ 适用 介质 主要零件材料
阀体、膜片室 阀芯 阀座 膜片 弹簧
KFDP17-16~25 16~25 ≤230   蒸汽,压缩空气 球墨铸铁 不锈钢 不锈钢 铜合金 不锈钢

 主要连接尺寸

型号 尺寸 25 32 40 50 65 80 100 125 150 200
KFDP17-16~25 L 180 200 220 250 280 310 350 400 450 550
H 391 391 437 437 558 564 606 650 734 772


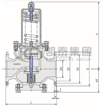
蒸汽减压阀结构图

蒸汽减压阀


提供全球流体控制解决方案

友情链接:乐鱼体育官网  米兰官网  365在线体育  ng电子游戏  jinnianhui金年会  庄闲和游戏官网  摩根娱乐  PG电子官网  PG电子官网